Verkauf Villa Roquebrune-Cap-Martin

ROQUEBRUNE CAP MARTIN • HOCHWERTIGE KALIFORNIEN-VILLA MIT 650M² FLÄCHE, DERZEIT IN RENOVIERUNG

Preis auf Anfrage

Referenz : VV403

Vor den Toren Monacos, genehmigtes Projekt für den Bau einer modernen Luxusvilla mit 650 m² Fläche.
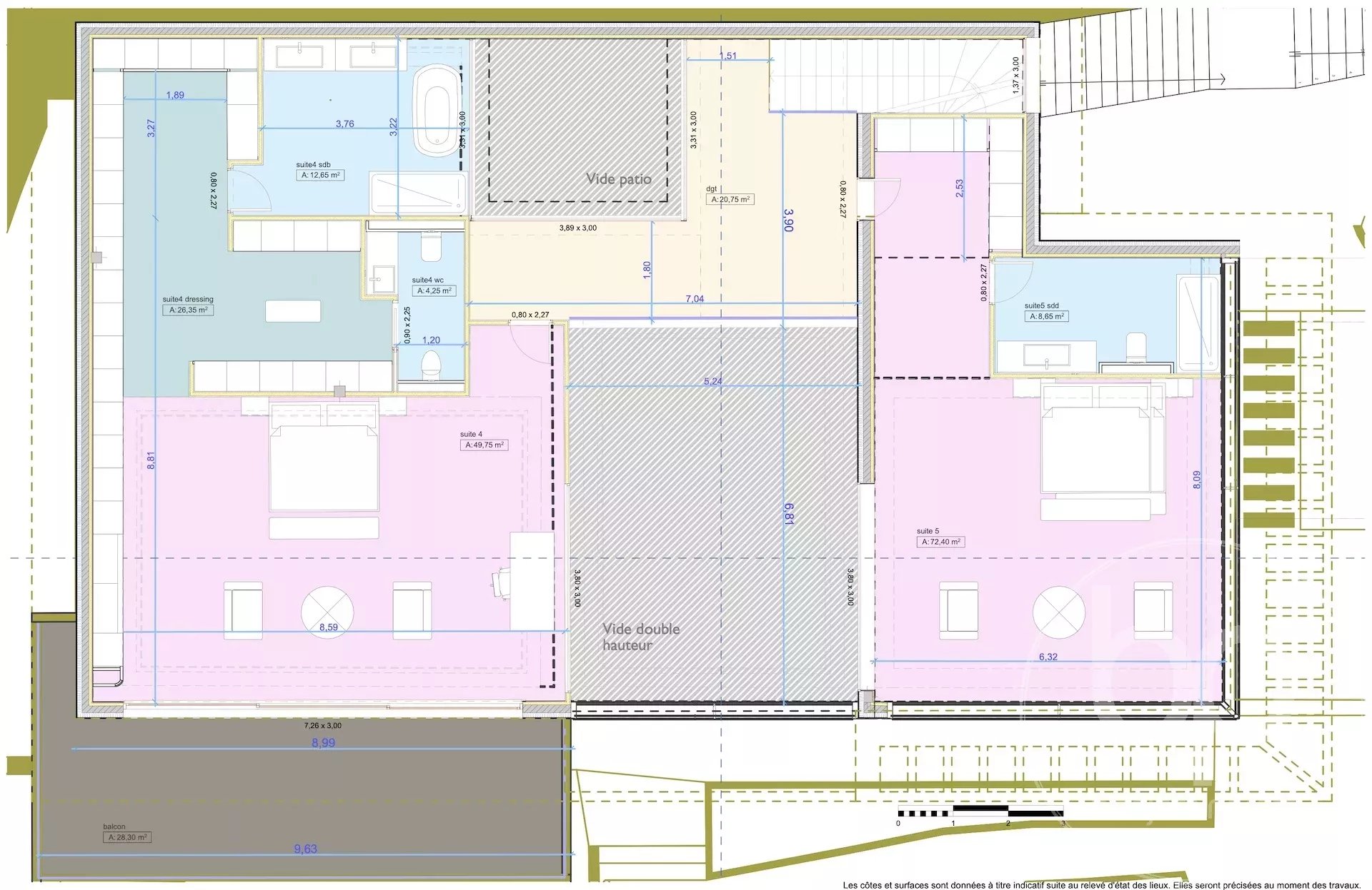
Das Projekt sieht 5 Schlafzimmer mit angrenzenden Badezimmern, ein riesiges Wohn-Esszimmer von über 130 m², einen Fitnessraum, einen Bereich für das Personal usw. vor, alles auf einem wunderschönen Grundstück von 2000 m².
Riesige Garage von 140 m².

In unmittelbarer Nähe von Monaco und mit unglaublicher Aussicht auf das Meer und Monaco.

Planen Sie ein Budget für die Bauarbeiten zwischen 3 und 4 Millionen Euro ein.

Überblick

  • TypHaus
  • Wohnfläche620 m²
  • Gesamtfläche870 m²
  • Zimmer7 Zimmer
  • Schlafzimmer5 Schlafzimmer
  • Badezimmer5 Badezimmer
  • Aussicht Panorama Meer
  • Parkplatz 1

Einzelheiten

  • Aussicht : Panorama Meer
  • Kommission zu Lasten des Verkäufers

Zimmer

  • 1 Eingang
  • 1 Wohn-/Esszimmer 132 m²
  • 1 Küche
  • 5 Schlafzimmer
  • 5 Badezimmer
  • 1 Waschraum
  • 1 Sportraum 50 m²
  • 1 Patio 22 m²
  • 1 Open space 27 m²
  • 1 Garage 140 m²
  • 1 Grundstück 2000 m²

Ausstattung

Keine Informationen verfügbar

Umgebung

  • Monaco 5 minutes
  • Flughafen 30 Minuten
  • Stadtzentrum 5 Minuten
  • Läden / Geschäfte 10 Minuten
  • Meer 10 Minuten

Energieeffizienz

Keine Informationen verfügbar

Video

Keine Informationen verfügbar

Weitere Informationen anfordern

Diese Website ist durch reCAPTCHA geschützt und es gelten die Datenschutzbestimmungen und Nutzungsbedingungen von Google.